NEUSTADT Maisonette Wohnung 3 Zimmer Balkon
- 06.01.2026
- user-695f80a387b85
- Siehe Text
Anschrift: Gastfeldstraße, 28201 Bremen
Kaufpreis: 195.000 €
Guten Tag,
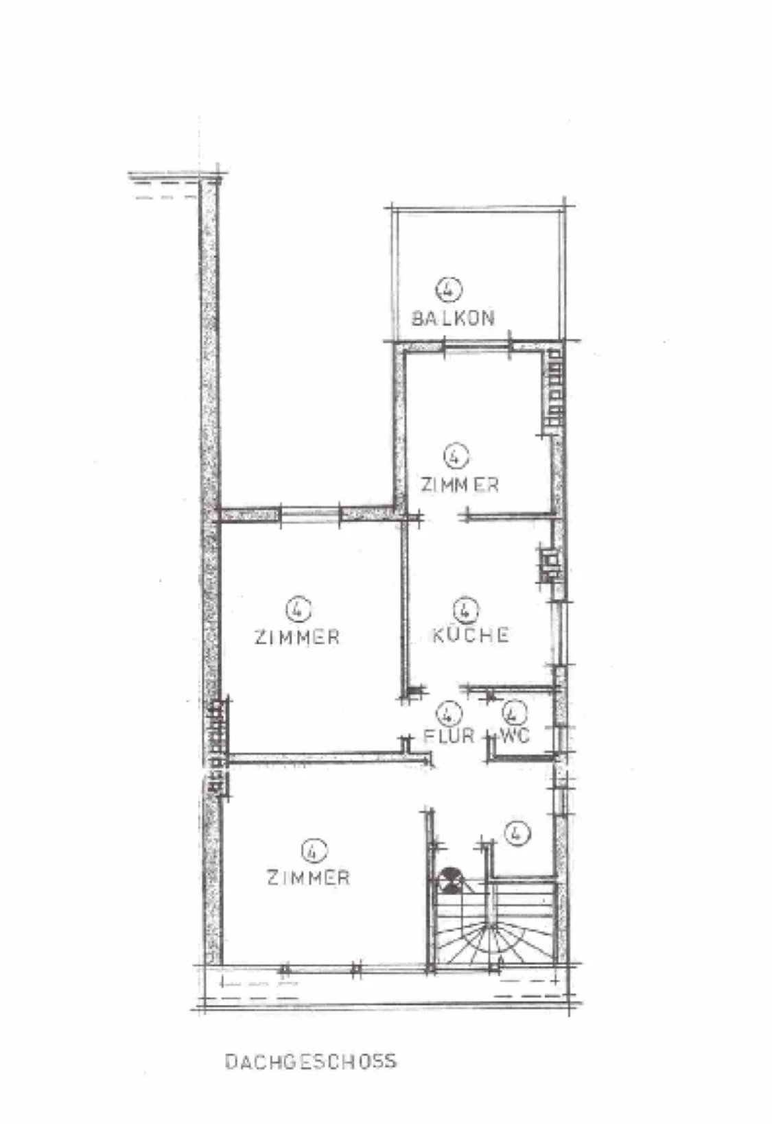
es wird eine Maisonette Wohnung in dem beliebten und zentralen Stadtteil Neustadt angeboten. In dem Altbremer Mehrfamilienhaus ist ein Gewerbeobjekt sowie 2 weitere Wohnungen vorhanden. Die Wohnung befindet sich im 3. OG.
Das Objekt wird durch eine Hausverwaltung verwaltet.
Haltestellen, Einkaufsmöglichkeiten, Kita und Schulen sind in unmittelbarer Nähe sowie der Flughafen und die Hochschule in wenigen Minuten zu erreichen.
Details:
• die Wohnung ist bis zum 30.04.2026 vermietet
• Zustand: bis auf 1 Fenster im Flur wurden alle Fenster und die Balkontür ausgetauscht
• 2016 neuer Boiler im Badezimmer
• Wohnfläche: ca. 68m² auf 2 Etagen + Balkon
• Kellerraum
• die Wohnung hat eigene Wasser-, Strom- und Gaszähler (im Keller)
Die Wohnung ist in allen Räumen lichtdurchflutet und ist wie folgt aufgeteilt:
untere Ebene
• 2 Zimmer
• Flur
• Badezimmer mit 2 kl. Fenster
• geräumige Küche mit Einbauküche (mittlerer Qualität)
• geräumige Sonnenterrasse
obere Ebene
ausgebauter Spitzboden mit schönen Holzbalken in dunkler Farbe und Fenster
Aktuell zahle ich folgende Posten:
Hausgeld 150 €
Grundsteuer 56,17 €
Verbandsbeitrag 8,16 €
Bei Interesse freuen wir uns über eine kurze Vorstellung Ihrer Person unter Angabe Ihres Namens und Ihrer Rufnummer.
Zum Schutz der Privatsphäre unserer Mieter prüfen wir alle Anfragen sorgfältig und vereinbaren Besichtigungstermine ausschließlich bei ernsthaftem Interesse.
Wir verzichten gerne auf Makleranfragen
Beste Grüße
Kaufpreis: 195.000 €
Guten Tag,
es wird eine Maisonette Wohnung in dem beliebten und zentralen Stadtteil Neustadt angeboten. In dem Altbremer Mehrfamilienhaus ist ein Gewerbeobjekt sowie 2 weitere Wohnungen vorhanden. Die Wohnung befindet sich im 3. OG.
Das Objekt wird durch eine Hausverwaltung verwaltet.
Haltestellen, Einkaufsmöglichkeiten, Kita und Schulen sind in unmittelbarer Nähe sowie der Flughafen und die Hochschule in wenigen Minuten zu erreichen.
Details:
• die Wohnung ist bis zum 30.04.2026 vermietet
• Zustand: bis auf 1 Fenster im Flur wurden alle Fenster und die Balkontür ausgetauscht
• 2016 neuer Boiler im Badezimmer
• Wohnfläche: ca. 68m² auf 2 Etagen + Balkon
• Kellerraum
• die Wohnung hat eigene Wasser-, Strom- und Gaszähler (im Keller)
Die Wohnung ist in allen Räumen lichtdurchflutet und ist wie folgt aufgeteilt:
untere Ebene
• 2 Zimmer
• Flur
• Badezimmer mit 2 kl. Fenster
• geräumige Küche mit Einbauküche (mittlerer Qualität)
• geräumige Sonnenterrasse
obere Ebene
ausgebauter Spitzboden mit schönen Holzbalken in dunkler Farbe und Fenster
Aktuell zahle ich folgende Posten:
Hausgeld 150 €
Grundsteuer 56,17 €
Verbandsbeitrag 8,16 €
Bei Interesse freuen wir uns über eine kurze Vorstellung Ihrer Person unter Angabe Ihres Namens und Ihrer Rufnummer.
Zum Schutz der Privatsphäre unserer Mieter prüfen wir alle Anfragen sorgfältig und vereinbaren Besichtigungstermine ausschließlich bei ernsthaftem Interesse.
Wir verzichten gerne auf Makleranfragen
Beste Grüße